«Η κάθε σύνθεση δημιουργείται ίσως μόνο μέσα από μια λεπτομερή και εύστοχη παρατηρητικότητα για το πραγματικό τοπίο και οποιοδήποτε αρχιτεκτονικό πρόβλημα μπορεί να βρει μια εύστοχη λύση με το έδαφος».
Τα παραπάνω λόγια του Α. Κωνσταντινίδη αποτέλεσαν την αφετηρία της συνθετικής διερεύνησης του εν λόγω συγκροτήματος κατοικιών με τουριστική χρήση. Αφετηρία για την αρχιτέκτονα Μαρία Παναγιώταρου, στάθηκε η σχεδόν βασανιστική αναζήτηση της σύνθεσης που προκύπτει μέσα από το έδαφος, αφού σκοπός του σχεδιασμού προφανώς είναι η εξυπηρέτηση των αναγκών αλλά κυρίαρχη θέση είχε και η αναγωγή του έργου σε αυτό το ιδιαίτερο ανάγλυφο – ελαιώνα στην Αστρίδα της Θάσου.

Αρχιτεκτονική Μελέτη: Παναγιώταρου Μαρία | Photo © Δημήτριος Καρδόγερος & Μενέλαος Πριμεράκης

Αρχιτεκτονική Μελέτη: Παναγιώταρου Μαρία | Photo © Δημήτριος Καρδόγερος & Μενέλαος Πριμεράκης

Αρχιτεκτονική Μελέτη: Παναγιώταρου Μαρία | Photo © Δημήτριος Καρδόγερος & Μενέλαος Πριμεράκης

“Ο προσανατολισμός, το κλίμα, οι οπτικές φυγές προς τη θάλασσα, το βραχώδες, γυμνό έδαφος με τις ελιές αλλά και τα όρια του οικοπέδου, η κλίμακα, ο χαρακτήρας της περιοχής και οι εσωτερικές λειτουργικές σχέσεις του κτίσματος ήταν τα δεδομένα της συνθετικής διαδικασίας”.

Αρχιτεκτονική Μελέτη: Παναγιώταρου Μαρία | Photo © Δημήτριος Καρδόγερος & Μενέλαος Πριμεράκης

Αρχιτεκτονική Μελέτη: Παναγιώταρου Μαρία | Photo © Δημήτριος Καρδόγερος & Μενέλαος Πριμεράκης
Έτσι διαβάζοντας τη γη με όλες τις τοπιακές της παραμέτρους επιλέχθηκε η τοποθέτηση του γραμμικού όγκου των τριών όμοιων μονάδων, σχεδόν στην κορυφή του λόφου-οικοπέδου, με σκοπό την εκμετάλλευση όλων των οπτικών φυγών, αλλά ταυτόχρονα και την αναδημιουργία μιας νέας κορυφογραμμής.

Αρχιτεκτονική Μελέτη: Παναγιώταρου Μαρία | Photo © Δημήτριος Καρδόγερος & Μενέλαος Πριμεράκης

Αρχιτεκτονική Μελέτη: Παναγιώταρου Μαρία | Photo © Δημήτριος Καρδόγερος & Μενέλαος Πριμεράκης
Η γραμμική ανάπτυξη παράλληλα με τον άξονα ανατολής – δύσης στρέφεται προς τον νοτιά και τη θέα προς το πέλαγος, ενώ λειτουργεί σαν μια μονοκοντυλιά πάνω στο βραχώδες τοπίο με τις ελιές. Η σημειακή αυτή παρέμβαση ουσιαστικά εδράζεται πάνω στη φυσική γη με την ελάχιστη δυνατή αλλοίωση, αφήνοντας όσο το δυνατόν περισσότερο ανέγγιχτο το έδαφος αλλά και τις ελιές.

Αρχιτεκτονική Μελέτη: Παναγιώταρου Μαρία | Photo © Δημήτριος Καρδόγερος & Μενέλαος Πριμεράκης
“Ο γραμμικός κτιριακός όγκος αποτελείται ουσιαστικά από τρεις συνεχόμενες μονάδες εν σειρά ως αναφορά στο κύτταρα-κτίσματα της περιοχής μελέτης”.

Αρχιτεκτονική Μελέτη: Παναγιώταρου Μαρία | Photo © Δημήτριος Καρδόγερος & Μενέλαος Πριμεράκης
Αποτελείται από την ισόγεια στάθμη και τη στάθμη της σοφίτας. Στην ισόγεια περιοχή αναπτύσσονται οι χώροι διημέρευσης και ύπνου ενώ στην καρδιά του κάθε κυττάρου δημιουργείται ημι-υπαίθριος χώρος διαμορφώνοντας έτσι ένα «καλοκαιρινό», ανοιχτό αλλά και προστατευμένο δωμάτιο. Η ανοιχτή νότια όψη, με τα επάλληλα κουφώματα, η δημιουργία ημιυπαιθρίου χώρου και στεγάστρου σε συνέχεια του τελευταίου, καθώς και η χρήση του ίδιου επιπέδου – στάθμης και υλικού, ενοποιεί το «μέσα» με το «έξω», διαλύοντας τα όρια και επεκτείνοντας τη ζωή στον ημι-υπαίθριο και υπαίθριο χώρο.

Αρχιτεκτονική Μελέτη: Παναγιώταρου Μαρία | Photo © Δημήτριος Καρδόγερος & Μενέλαος Πριμεράκης

Αρχιτεκτονική Μελέτη: Παναγιώταρου Μαρία | Photo © Δημήτριος Καρδόγερος & Μενέλαος Πριμεράκης

Αρχιτεκτονική Μελέτη: Παναγιώταρου Μαρία | Photo © Δημήτριος Καρδόγερος & Μενέλαος Πριμεράκης

Αρχιτεκτονική Μελέτη: Παναγιώταρου Μαρία | Photo © Δημήτριος Καρδόγερος & Μενέλαος Πριμεράκης

Αρχιτεκτονική Μελέτη: Παναγιώταρου Μαρία | Photo © Δημήτριος Καρδόγερος & Μενέλαος Πριμεράκης
Τέλος, αξίζει να σημειωθεί πως σκοπός της σύνθεσης ήταν να υιοθετηθούν και να συσχετιστούν τα τοπιακά χαρακτηριστικά και οι δυνάμεις του εδάφους (υλικά, υφές, θέα). Το εμφανές μπετόν, η τοπική πέτρα και ο σοβάς σε συνδυασμό με το χρώμα και τα συστατικά του ελαιώνα, την εναλλαγή του φωτός και της σκιάς διαμορφώνουν και τον χαρακτήρα της περιοχής.

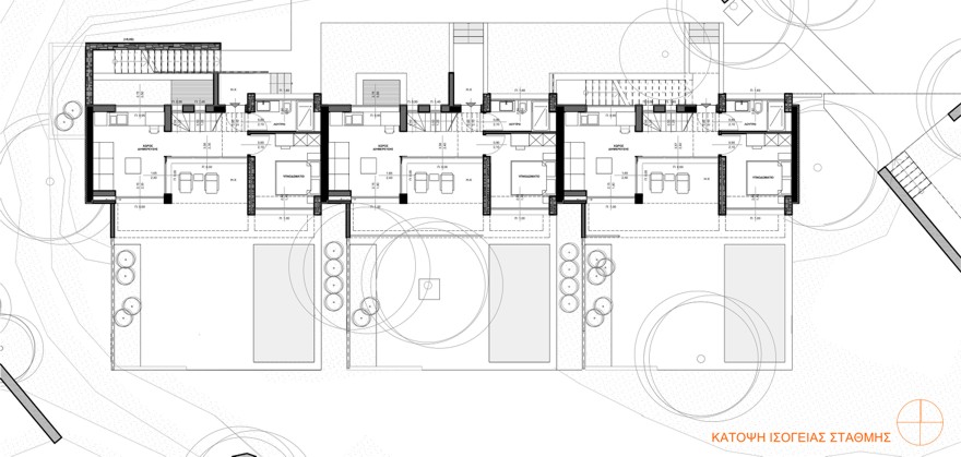
Κάτοψη ισόγειας στάθμης, © Παναγιώταρου Μαρία

Κάτοψη στάθμης σοφιτών, © Παναγιώταρου Μαρία

Εγκάρσια τομή, © Παναγιώταρου Μαρία

Διαμηκής τομή, © Παναγιώταρου Μαρία
Στοιχεία & Συντελεστές έργου:
Τίτλος έργου: Olive Blue Thassos Luxury Villas, Τυπολογία: Τουριστικό κατάλυμα, Τοποθεσία: Αστρίδα – Θάσος, Αρχιτεκτονική Μελέτη: Παναγιώταρου Μαρία (Αρχιτέκτων μηχανικός), Στατική Μελέτη: Σφούνης Δημήτριος (Πολιτικός μηχανικός), Κατασκευή: Π.Ζερενίδης – Α.Κρασνίδου, Έτος ολοκληρωσης: 2023, Κείμενο παρουσίασης: Παναγιώταρου Μαρία, Φωτογραφίες: Δημήτριος Καρδόγερος & Μενέλαος Πριμεράκης





